临海市 城市桃源建设工程规划许可证批后公示
为推行政务公开,提高行政审批工作的透明度,现将已经核发建设工程规划许可证的台州宝润置业有限公司城市桃源项目进行公示:此次核发的建设工程规划许可证编号为建字第3310822……
临海市 台州市工贸企业安全生产规范化评分表
新员工未进行“三级”教育的,每发现一人扣0.5分;安全设施投资应当纳入建设项目概算。(3)确定专人进行现场统一指挥;23注……
临海市 2012年6月16日~6月30日行政许可批后公示
序号浙江玖洋医疗器械有限公司2012.06.28浙江春雨置业有限公司中国移动临海分公司2012-6-252012-6-18城市绿地占用审批崇和路、台州府路城市树木修剪审批申请单位(个人)巾山路,鹿城路……
临海市 规划许可证批后公示(2012.6.16-6.30)
2012.6.292012.6.292012.6.262012.6.262012.6.262012.6.262012.6.212012.6.181#、2#厂房162.81134.55104.41354.6237.6237.654.2744.85269.1269.1128.7283.540.289.742.989.7项目地点117117陈由省冯建华卢轩边屈三云卢梦琳39……
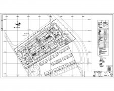
临海市 临海市涌泉中学1#教学楼建设工程规划许可证批后公示
此次核发的建设工程规划许可证编号为建字第331082201200044号,为1#教学楼,核发的总建筑面积为2500.65平方米。/uploadFiles/2012-07/1341824449015.jpg该项目总用地面积为37035平方米,规划建筑面积……
临海市 临海市人民政府关于印发临海市职工生育保险办法的通知
文号:临政发〔2012〕52号 临海市人民政府文件 临政发〔2012〕52号 临海市人民政府 关于印发临海市职工生育保险办法的通知 临海经济开发区、东部区块、临海港区管委会,各镇人民政府……
临海市 临海市人民政府关于印发临海市城乡居民医疗保险试行办法的通知
文号:临政发〔2012〕51号 临海市人民政府文件 临政发〔2012〕51号 临海市人民政府 关于印发临海市城乡居民医疗保险试行办法的通 知 临海经济开发区、东部区块、临海港区管委会,各……
临海市 临海市人民政府关于印发临海市牛头山水库水质保护管理办法(试行)的通知
文号:临政发〔2012〕53号 临海市人民政府文件 临政发〔2012〕53号 临海市人民政府 关于印发临海市牛头山水库水质保护管理办法(试行)的通知 临海经济开发区、东部区块、临海港区管……
临海市 关于推进医疗卫生单位廉洁风险防控机制建设深化医药回扣专项治理工作的意见
为深入贯彻市委、市政府关于加强廉政风险防控工作的有关文件精神,根据突出重点领域、重点岗位、重点环节和动态长效管理机制建设的要求,结合我市卫生工作实际,现就推进医疗……



